Classrooms elevation, section and distribution plant details dwg file
Description
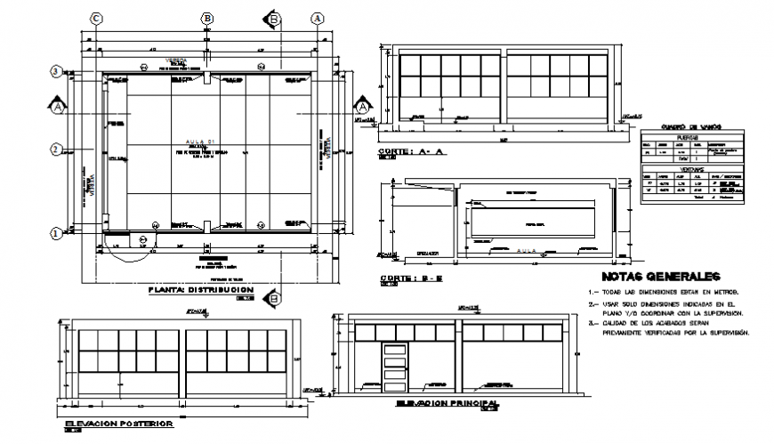
Classrooms elevation, section and distribution plant details that includes a detailed view of facade and back section and elevations details, dimensions details, classroom area details, doors and windows details, wall design and much more of classroom details.
Uploaded by:
Eiz
Luna

