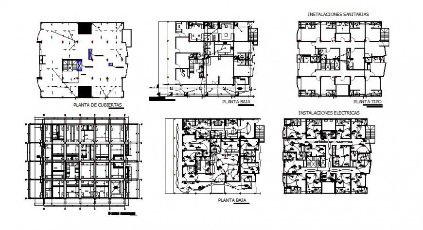
Detail building sanitary and electrical installation 2d view layout autocad file
Description
Detail building sanitary and electrical installation 2d view layout autocad file, wall and flooring detail, electrical wire detail, plug and switch detail, earthing wire detail, floor level detail, staircase detail, door and window detail, sanitary toilet and bathroom detail, circuit detail, terrace plan detail, plan view detail, etc.
Uploaded by:
Eiz
Luna

