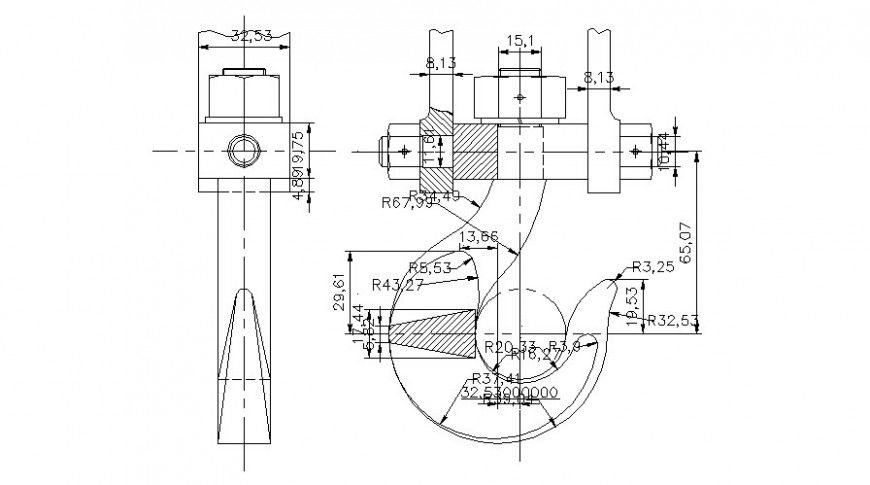
Hook plan and section autocad file
Description
Hook plan and section autocad file, cross section line detail, dimension detail, nmaign detail, redius detail, reinforcement detail, nut bolt detail, main hole detail, hatching detail, hidden line detail, hoe section detail, not to scale detail, covering detail, etc.
Uploaded by:
Eiz
Luna

