Beam apartment flat section plan autocad file
Description
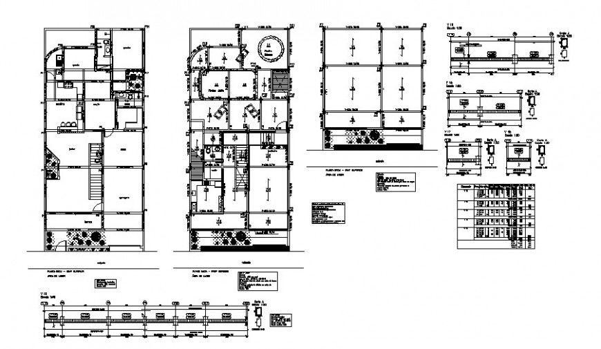
Beam apartment flat section plan autocad file, centre line plan detail, dimension detail, naming detail, table specification detail, reinforcement detail, bolt nut detail, stirrups detail, covering detail, column section detail, stair detail, landscaping detail in tree and section detail, brick wall detail, flooring detail, etc.
File Type:
DWG
File Size:
1.8 MB
Category::
Construction
Sub Category::
Concrete And Reinforced Concrete Details
type:
Gold
Uploaded by:
Eiz
Luna
