Metallic gate opening structure, elevation and sectional details dwg file
Description
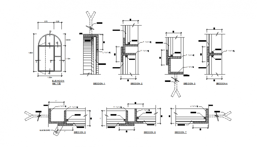
Metallic gate opening structure, elevation and sectional details that includes a detailed view of front elevation view, brick wall view, sectional details, dimension details, detail of picaporte to the floor, detail of hinge fixing, detail of picaporte cerrojo, horn, picaporte, anchored horn and much more of gate details.
Uploaded by:
Eiz
Luna

