Ground floor vertical plan of the villa with in dwg AutoCAD file.
Description
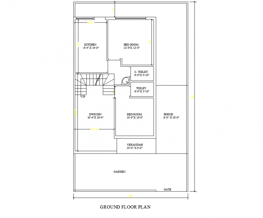
Ground floor vertical plan of the villa with in dwg AutoCAD file. This drawing includes the ground floor architectural plan of the villa. Drawing room, living room, kitchen, two bedroom, dining area, wash yard, verandah, porch area, toilet, stairs, and garden.
Uploaded by:
Eiz
Luna

