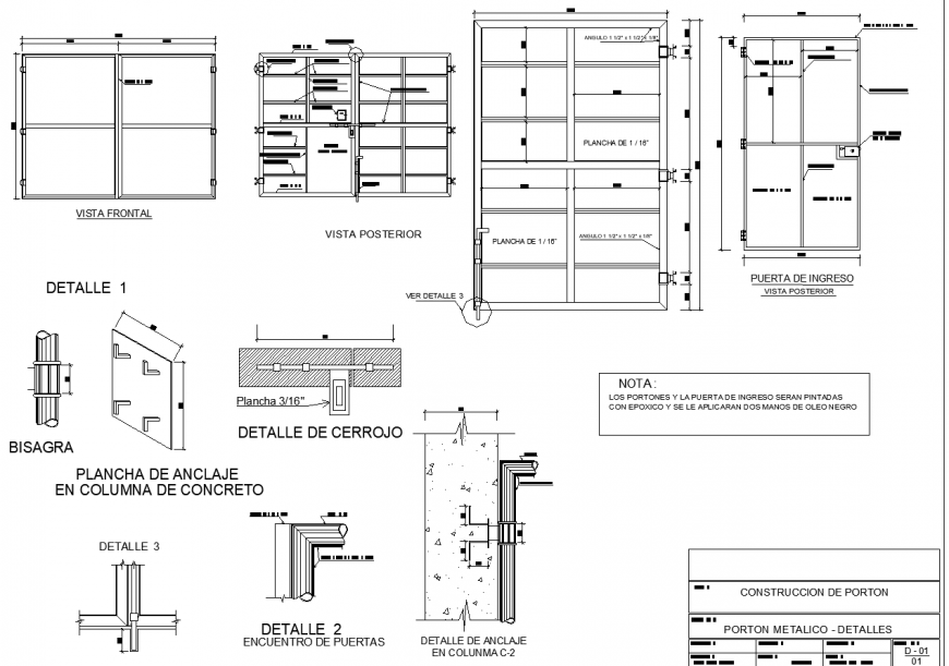
Sliding door and gate construction drawing in dwg file.
Description
Sliding door and gate construction drawing in dwg file. detail drawing of Sliding door and gate construction, plan , section and elevation details, isometric view, section details, sectional elevation , with dimensions and descriptions.
File Type:
DWG
File Size:
62 KB
Category::
Dwg Cad Blocks
Sub Category::
Windows And Doors Dwg Blocks
type:
Gold
Uploaded by:
Eiz
Luna

