Guard house design
Description
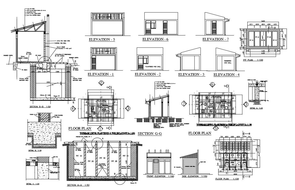
A Guard house design elevation details , layout plan, TOPBEAM,LINTOL PLAN,TRUSS & PURLIN LAYOUT. Guard house design download file, Guard house design dwg
file, Guard house design
File Type:
3d max
File Size:
—
Category::
Interior Design
Sub Category::
House Interior CAD Blocks & CAD Model
type:
Gold
Uploaded by:
helly
panchal

