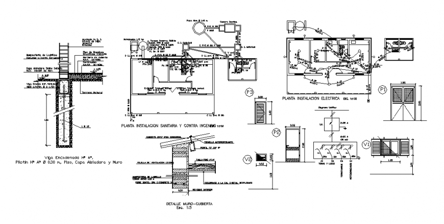
Sanitary installation, electric installation and constructive structure details dwg file
Description
Sanitary installation, electric installation and constructive structure details that includes a detailed view of male toilet sectional details, female toilet sectional details, passage, sanitary equipment installation details, doors and ventilation details, plumbing details, interior details, dimensions details, wall section details with cable details, wire details with foundation, side typical shoe, typical central shoe, columns, foundations, shoes, cistern tank, walls of concr. arm., beams flat, peralted beams, foundation beams, (cement: sand: crushed stone), typical detail of reinforcement and ended of walls of masonry and much more of sanitary details.
File Type:
DWG
File Size:
185 KB
Category::
Interior Design
Sub Category::
Bathroom Interior Design
type:
Gold
Uploaded by:
Eiz
Luna

