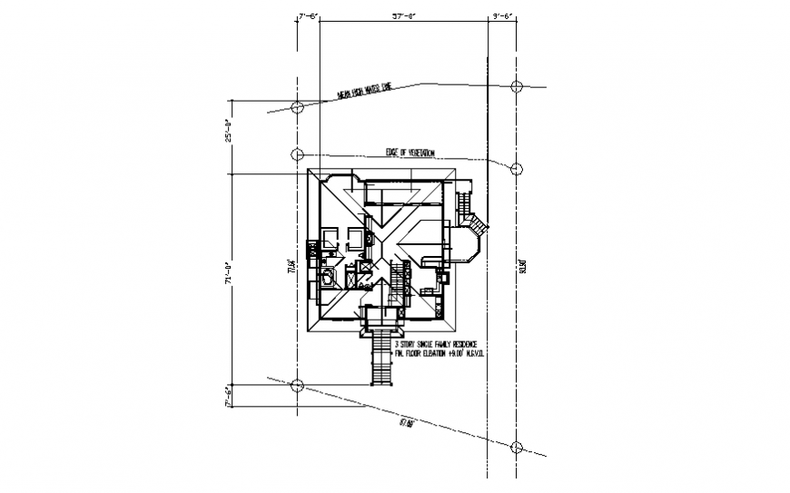
Three story single family house framing and general layout plan details dwg file
Description
Three story single family house framing and general layout plan details that includes a detailed view of wood posts, joints, decking, grider pre-engineering, steel pipe column, play joints, existing floor joints, knee wall, steel pipe column, beam schedule details, dimensions details with main entry house door, drawing room, living room, family hall, kitchen, dining area, indoor staircases, laundry area, balcony, bedroom, master bedroom, toilets and bathroom, indoor doors and much more of house project.
Uploaded by:
Eiz
Luna

