Office building interior design
Description
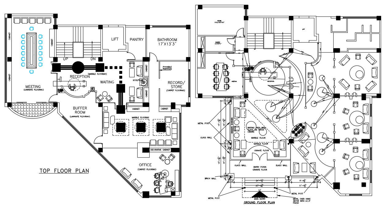
A Office building interior design WAITING AREA WITH GLASS ON TRUSS CEILING, RECEPTION, MEETING, GRANITE FLOOR, MARBLE FLOORING, POSSIBLE PARTITION.
Office building interior design download file,Office building interior design deg file, Office building interior design
Uploaded by:
helly
panchal
