Private office details
Description
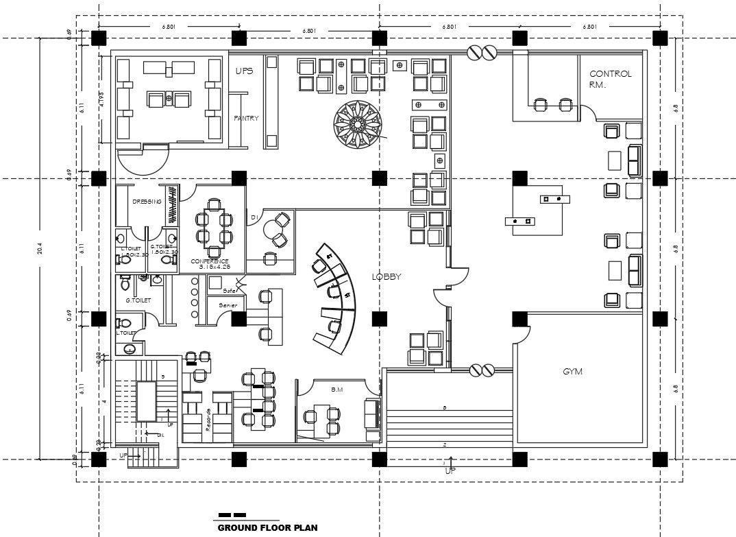
A Private office details layout plan,including a LOBBY, DRESSING, CONTROL, Records, furniture details , etc. Private office details download fie, Private office details
dwg file, Private office details
Uploaded by:
helly
panchal

