Reinforcement detail drawing in dwg AutoCAD file.
Description
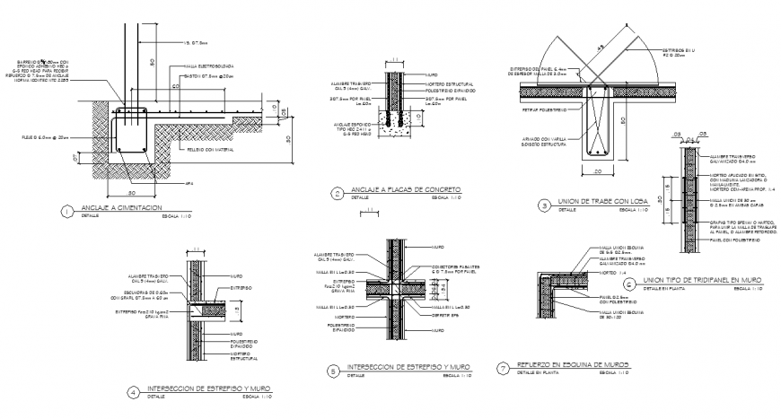
Reinforcement detail drawing in dwg AutoCAD file. this drawing includes the anchor cementation, concrete anchor plates, detail of slab union lock, union type of tridipanel on wall, wall intersection detail, detail of corner reinforcement of wall with detail text and dimensions.
File Type:
DWG
File Size:
70 KB
Category::
Construction
Sub Category::
Concrete And Reinforced Concrete Details
type:
Gold
Uploaded by:
Eiz
Luna

