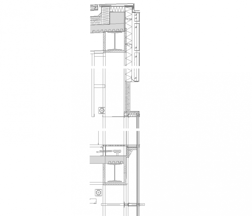
Pre-fabricated structure, wall section drawing in dwg file.
Description
Pre-fabricated structure, wall section drawing in dwg file. detail drawing of Pre-fabricated structure, wall section, joinery section details, I section with insulation sheet and other joinery details.
Uploaded by:
Eiz
Luna

