High rise corporate office tower facade section and ground floor details dwg file
Description
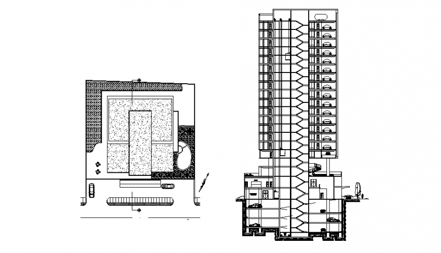
High rise corporate office tower facade section and ground floor details that includes a detailed view of flooring view, doors and windows view, staircase sectional details, balcony view, wall sections and dimensions details, basement car parking floor, tree view, wall design and much more of office tower project.
Uploaded by:
Eiz
Luna
