Working plan bed clinic plan, elevation and section detail dwg file
Description
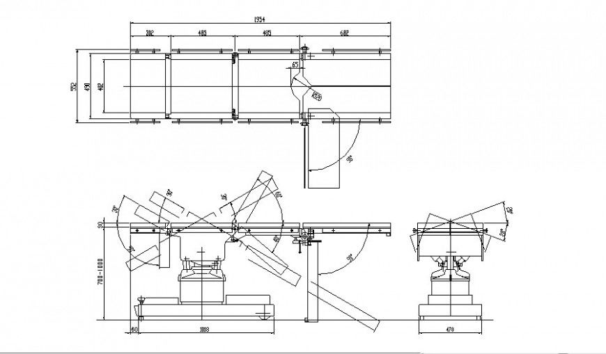
Working plan bed clinic plan, elevation and section detail dwg file, dimension detail, naming detail, front elevation detail, side elevation detail, reinforcement detail, bolt nut detail, radius detail, hatching detail, thickness detail, not to scale detail, etc.
Uploaded by:
Eiz
Luna

