Lighting, force and plant distribution details of nave industrial plant dwg file
Description
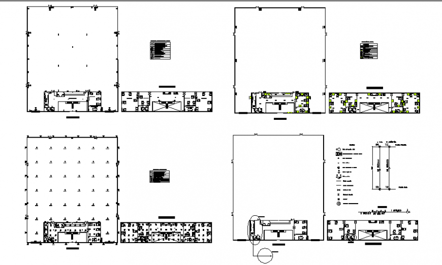
Lighting, force and plant distribution details of nave industrial plant that includes a detailed view of first floor details, second floor details, dimensions details, legends detaills, structure details, technical specification details, lighting installation details, force installation details, distribution plant details and much more of indutrial plant details.
Uploaded by:
Eiz
Luna
