Foundation plan & detail design of progressive development House project
Description
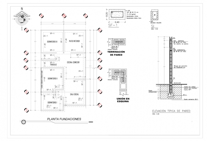
Here the Foundation plan & detail design of progressive development House project with foundation plan section drawing. column section detail, reinforcement bar column section detail design drawing in this auto cad file.
Uploaded by:
Eiz
Luna

