Concrete roof slab and constructive structure details of house dwg file
Description
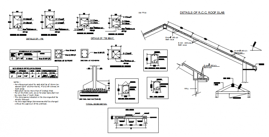
Concrete roof slab and constructive structure details of house that includes a detailed view of capacity of load of the ground at level of foundation of shoes, foundation floors, concrete-cement mixture, false floors, cement-concrete mixture (on compacted soil), Surpluses, cement-concrete mix medium stone, concrete structural, elements of confinement of masonry walls of hollow blocks, Minimum lengths of overlap (unless indicated) and much more of constructive details.
Uploaded by:
Eiz
Luna

