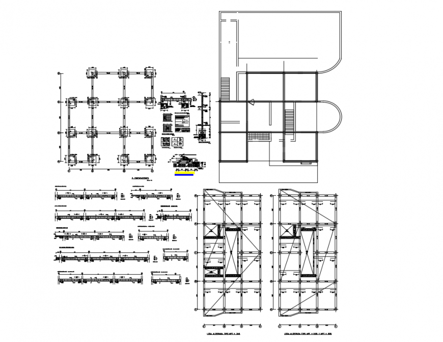
Details cimentacion dwg file
Description
Details cimentacion dwg file. Includes minimum, concrete floor, steel spindle in block column, wall tile, racing is, monolithic concrete, compact filling, foundations, scale, compact filling, natural soil, concrete floor, steel spindle in block column etc in autocad format.
Uploaded by:
Eiz
Luna
