Restaurant kitchen door details
Description
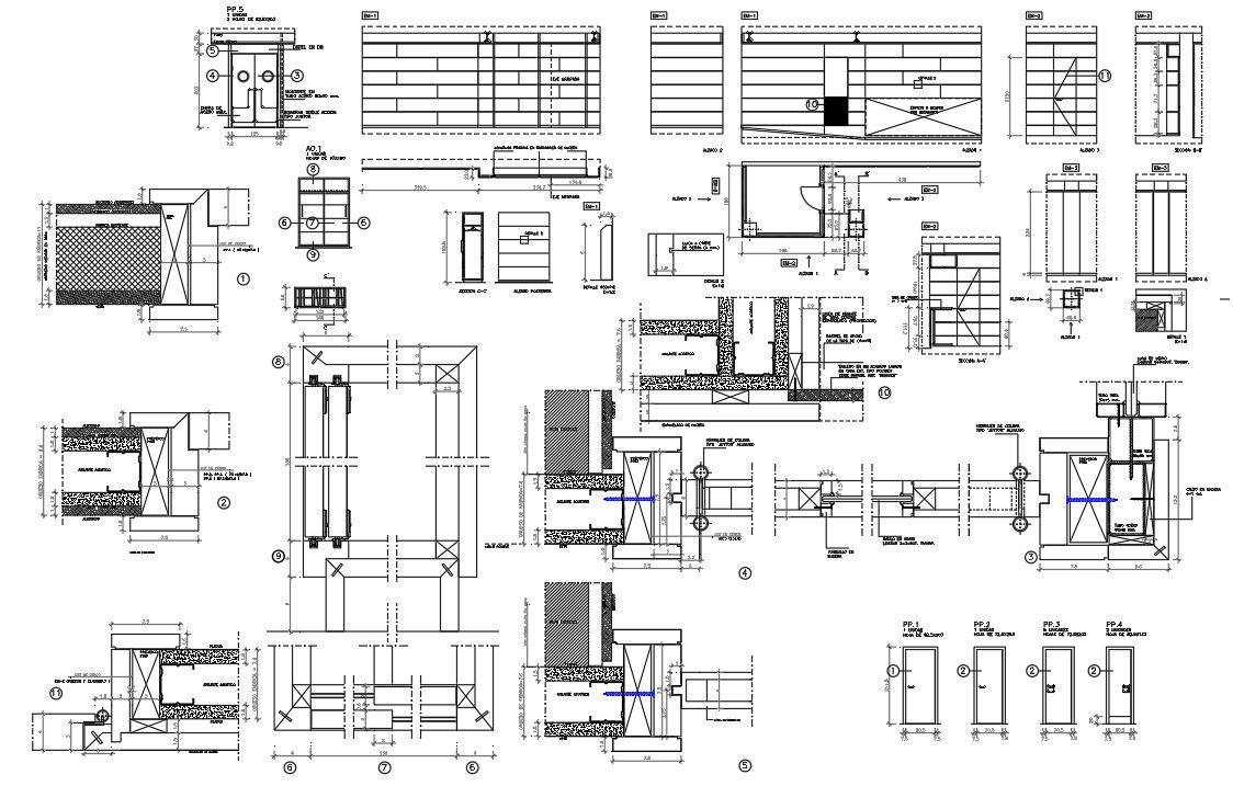
A Restaurant kitchen door details, TOP OF GRANITE, WOODEN PANELLING, TOP LINE COVER AGAINST, PANELLING, Restaurant kitchen door details download file,
Restaurant kitchen door details dwg file, Restaurant kitchen door details
Uploaded by:
helly
panchal
