Office electrical planning detail dwg file
Description
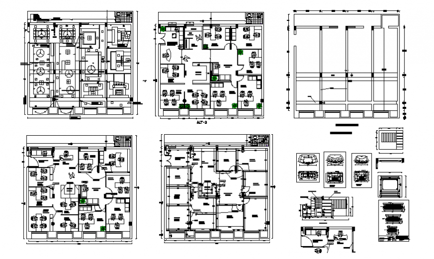
Office electrical planning detail dwg file, dimension detail, naming detail, furniture detail in door, table, chair, sofa and window detail, brick wall detail, flooring detail, grid line detail, thickness detail, hatching detail, hidden line detail, not to scale detail, landscaping detail in tree and plant detail, etc.
Uploaded by:
Eiz
Luna
