Primary school plan, elevation and section autocad file
Description
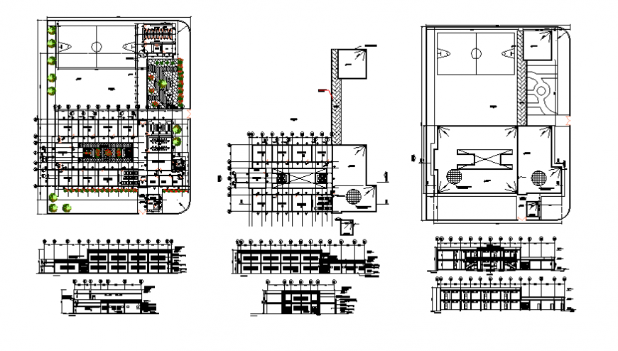
Primary school plan, elevation and section autocad file, centre line detail, dimension detail, naming detail, front elevation detail, side elevation detail, back elevation detail, section A-A’ detail, section B-B’ detail, etc.
Uploaded by:
Eiz
Luna

