Unit apartment housing building ground, first, second etc floor plan cad drawing details dwg file
Description
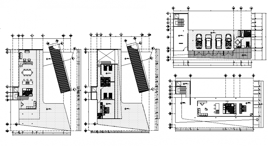
Unit apartment housing building ground, first, second etc floor plan cad drawing details that includes a detailed view of ground floor, first floor and terrace with main entry gate, mini garden, car parking view, main entry house door, drawing room, living room, family hall, kitchen, dining area, indoor staircases, laundry area, balcony, bedroom, master bedroom, toilets and bathroom, indoor doors, furniture details and much more of apartment building.
Uploaded by:
Eiz
Luna

