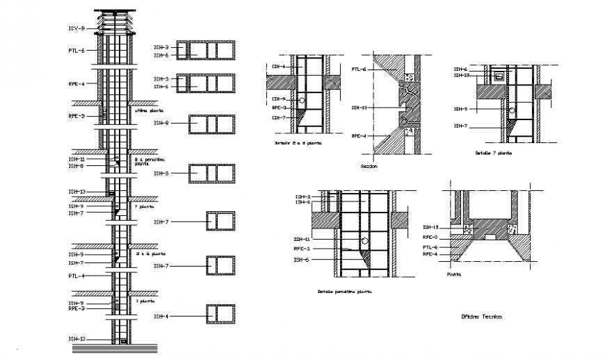
Kitchen chimney constructive structure details dwg file
Description
Kitchen chimney constructive structure details dwg file that includes a detailed view of wall construction details, concrete structure details, reinforcement details, memory of material, cuts and jonts details, dimensions details and much more of chimney details.
Uploaded by:
Eiz
Luna

