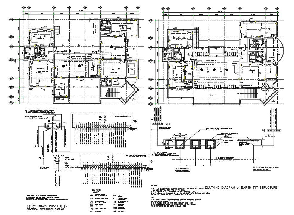
Electrical villas layout plan
Description
A Electrical villas layout plan in bedroom, kitchen , bedroom, dining room, , EARTHING DIAGRAM & EARTH PIT STRUCTURE, MOLDED CASE CIRCUIT BREAKER MCCB,
MINIATURE CIRCUIT BREAKER MCB, EARTH LEAKAGE CIRCUIT BREAKER ELCB.
File Type:
Autocad
File Size:
292 KB
Category::
Electrical
Sub Category::
Interior Design Electrical
type:
Gold
Uploaded by:
helly
panchal
