Toilet and house planning autocad file
Description
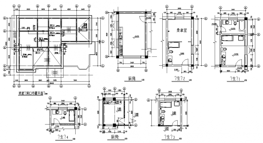
Toilet and house planning autocad file, dimension detail, naming detail, centre lien plan detail, scale 1:50 detail, brick wall detail, flooring detail, cut out detail, hidden line detail, toilet detail in water closed and sink detail, hidden line detail, etc.
File Type:
DWG
File Size:
47 KB
Category::
Interior Design
Sub Category::
Bathroom Interior Design
type:
Gold
Uploaded by:
Eiz
Luna

