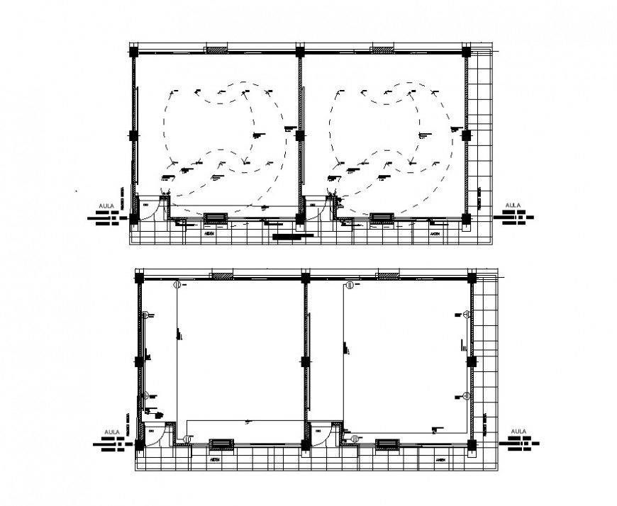
Class room plan and electrical installation 2d view layout autocad file
Description
Class room plan and electrical installation 2d view layout autocad file, plan view detail, hatching detail, door detail, cut out detail, wall and flooring detail, section line detail, electrical wire detail, hidden line detail, door and window detail, scale detail, dimension detail, etc.
Uploaded by:
Eiz
Luna

