Bridge Construction detail dwg file
Description
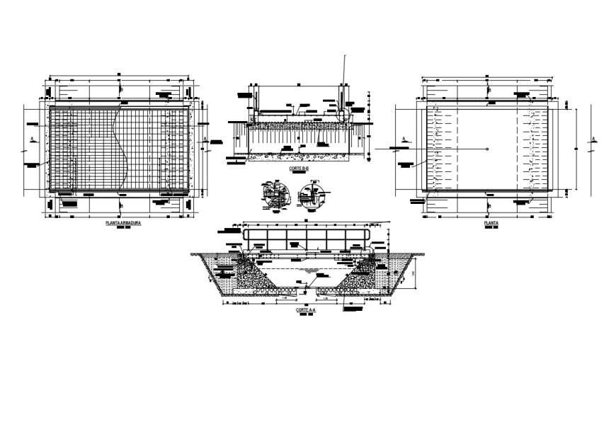
Bridge Construction detail dwg file. Dimesion detail, section AA detail, section BB detail, plan detail and much more in autocad format.
Uploaded by:
Eiz
Luna
Bridge Construction detail dwg file. Dimesion detail, section AA detail, section BB detail, plan detail and much more in autocad format.
Uploaded by:
Luna