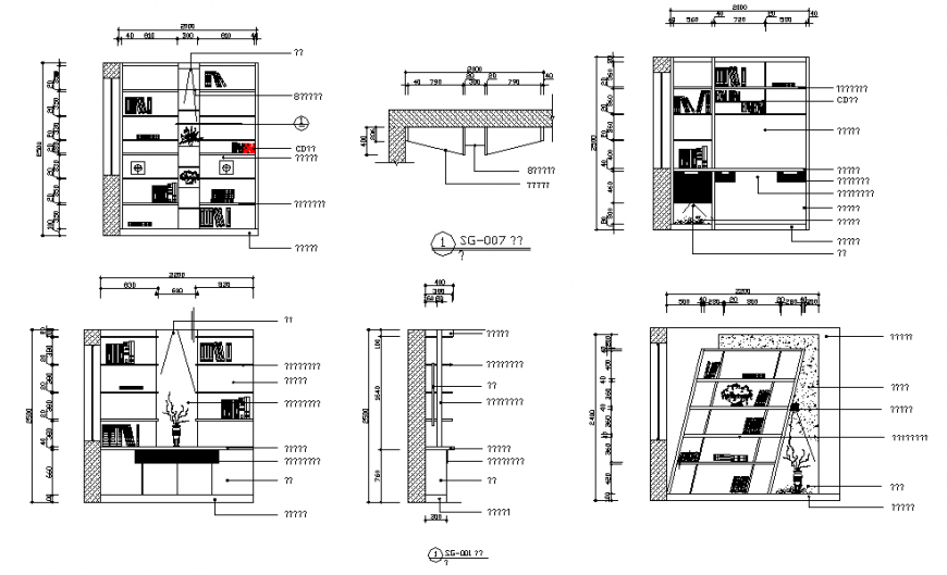
Living room cub board elevation and section autocad drawing file
Description
Living room cub board elevation and section autocad drawing file, dimension detail, naming detail, hatching detail, wooden material detail, drawer detail, book stand detail, section line detail, flower design detail, etc.
Uploaded by:
Eiz
Luna

