Cub Board DWG 2D Elevation Plan Layout for Interior Storage Design
Description
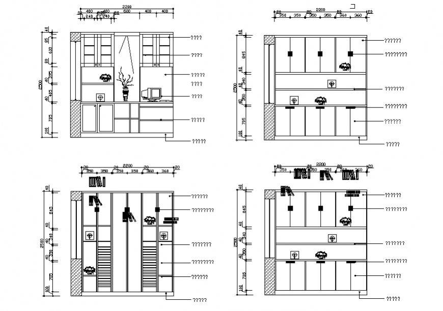
This DWG file features a detailed 2D elevation plan of a cub board, including dimensions, a book stand, and a computer table layout. Designed for architects, interior designers, and CAD professionals, it provides precise measurements and clear drafting details, making it easier to plan functional storage solutions. The drawing helps visualize furniture placement, optimize space, and integrate stylish storage units seamlessly into modern interiors. Suitable for both residential and commercial projects, this file supports accurate interior layout planning, furniture arrangement, and the creation of practical yet visually appealing cub board designs.
Uploaded by:
Eiz
Luna

