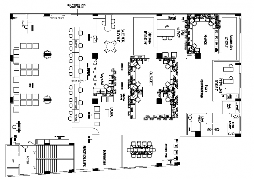
Corporate office building furniture detail plan in dwg file.
Description
Corporate office building furniture detail plan in dwg file. detail drawing of corporate office building, furniture detail drawing, work station drawing , meeting area, manager cabin detail drawing.
Uploaded by:
Eiz
Luna

