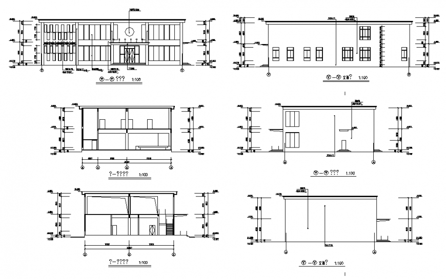
One-level house all sided sections cad drawing details dwg file
Description
One-level house all sided sections cad drawing details that includes a detailed view of front and back sectional view, side sectional view, flooring view, doors and windows view, staircase view, balcony view, wall design, dimensions and much more of house section details.
Uploaded by:
Eiz
Luna

