Office building toilet plumbing pipe lien layout file
Description
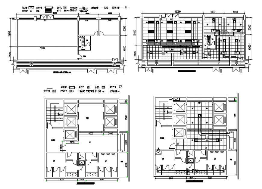
Office building toilet plumbing pipe lien layout file, dimension detail, naming detail, cut out detail, stair detail, furniture detail in door and window detail, flooring tiles detail, brick wall detail, not to scale detail, soil and waste water pipe lien detail, etc.
File Type:
DWG
File Size:
34 KB
Category::
Interior Design
Sub Category::
Bathroom Interior Design
type:
Gold
Uploaded by:
Eiz
Luna
