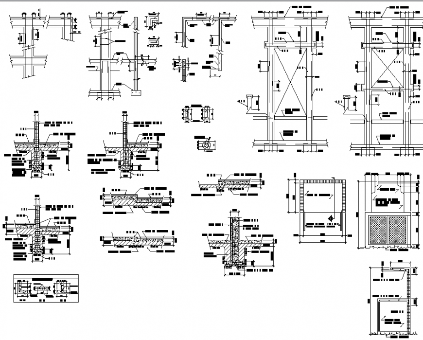
Concrete floor detail drawing in dwg AutoCAD file.
Description
Concrete floor detail drawing in dwg AutoCAD file. This file includes the grill blocks detail for electrical meter with detail description and dimensions. Detail construction drawing of the concrete floor with detail dimensions and text.
Uploaded by:
Eiz
Luna

