Enclosure detail drawing in dwg AutoCAD file.
Description
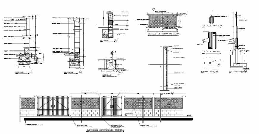
Enclosure detail drawing in dwg AutoCAD file. This drawing includes the front elevation of the enclosure with compound wall and main gate. Sectional elevation detail of the compound wall, detail of the central concrete pole, sectional elevation of the top metal fence with detail dimensions and text.
File Type:
DWG
File Size:
152 KB
Category::
Construction
Sub Category::
Construction Detail Drawings
type:
Gold
Uploaded by:
Eiz
Luna
