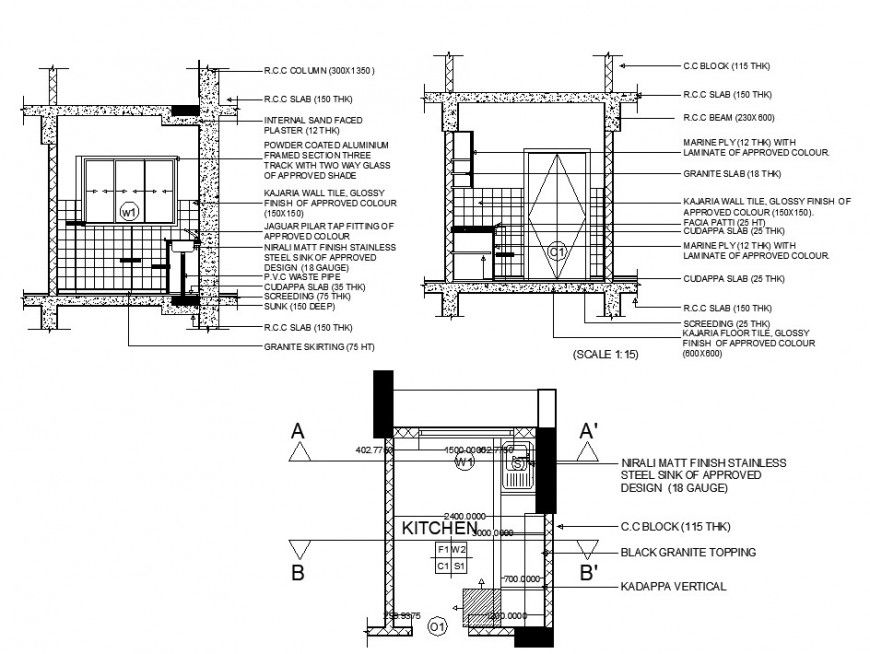
Plan and sectional detail of kitchen structure 2d view layout file in autocad format
Description
Plan and sectional detail of kitchen structure 2d view layout file in autocad format, plan view detail, wall and flooring detail, cut out detail, naming detail, platform detail, wash-basin detail, gas-stove detail, hatching detail, section line detail, scale 1:15 detail, RCC slab detail, refrigerator detail, door and window detail, RCC beam detail, concrete masonry detail, granite skirting detail, dimension detail, section detail, etc.
Uploaded by:
Eiz
Luna

