Center line plan and elevation house detail dwg file
Description
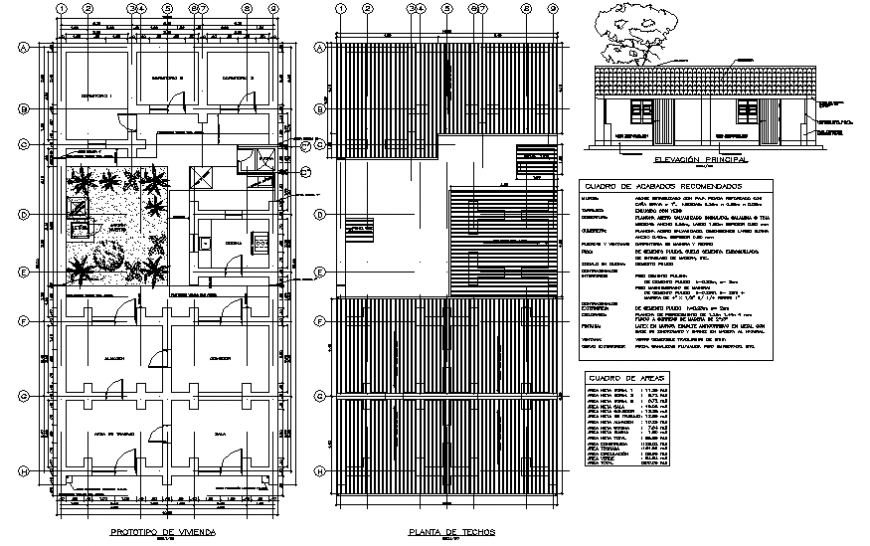
Center line plan and elevation house detail dwg file, dimension detail, naming detail, table specification detail, landscaping detail in tree and plant detail, brick wall detail, flooring detail, cut out detail, hatching detail, not to scale detail, furniture detail in door and window detail, etc.
Uploaded by:
Eiz
Luna
