Electrical installation of office building structure 2d view layout plan in dwg format
Description
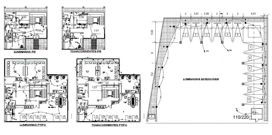
Electrical installation of office building structure 2d view layout plan in dwg format, plan view detail, furniture detail, wall and flooring detail, hatching detail, electrical wire detail, fuse detail, switch and plug detail, earthing wire detail, sanitary toilet detail, door and window detail, staircase detail, not to scale drawing, floor level detail, dimension detail, hidden line detail, etc.
Uploaded by:
Eiz
Luna

