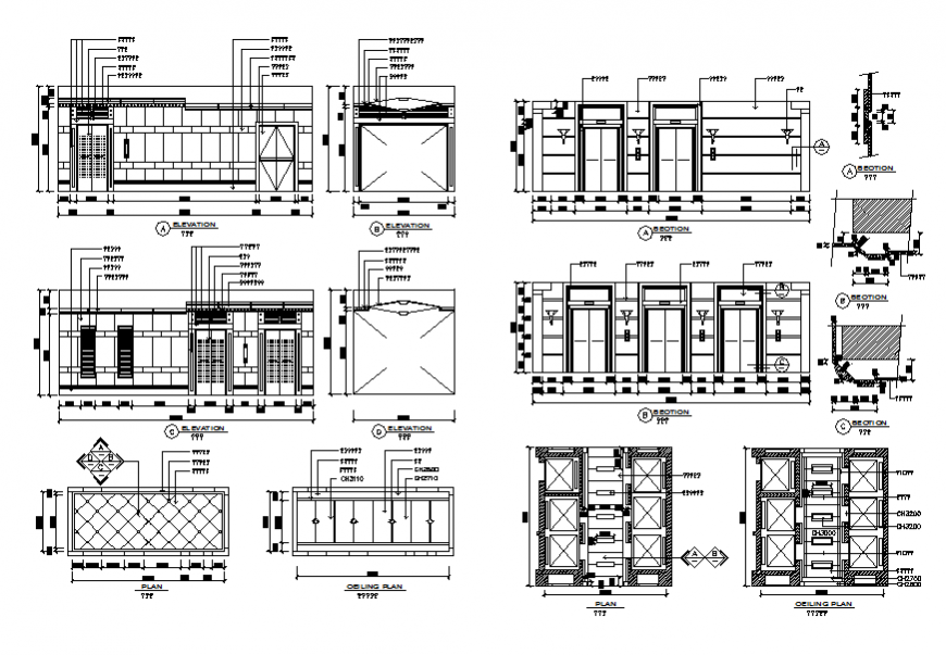
Public toilet all sided elevation, section, plan and ceiling plan details dwg file
Description
Public toilet all sided elevation, section, plan and ceiling plan details that includes a detailed view of facade back and side elevations and section details with flooring view, doors and windows view, staircase sectional details, balcony view, wall sections and dimensions details with ceiling plan details, scale details and much more of toilet details.
File Type:
DWG
File Size:
40 KB
Category::
Interior Design
Sub Category::
Bathroom Interior Design
type:
Gold
Uploaded by:
Eiz
Luna

