Living room interior details
Description
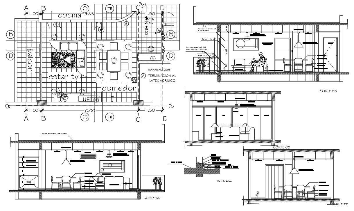
Living room interior details including a REFERENCES FINISHING ACRYLIC LATEX,dinning room, WOOD BACK, WOODEN SEAT, METALLIC LEGS, Living room interior
details download file,Living room interior details dwg file, Living room interior details
File Type:
Autocad
File Size:
256 KB
Category::
Interior Design
Sub Category::
Drawing And Living Area Interior Design
type:
Gold
Uploaded by:
helly
panchal

