Large catering kitchen plan, furniture layout and auto-cad details dwg file
Description
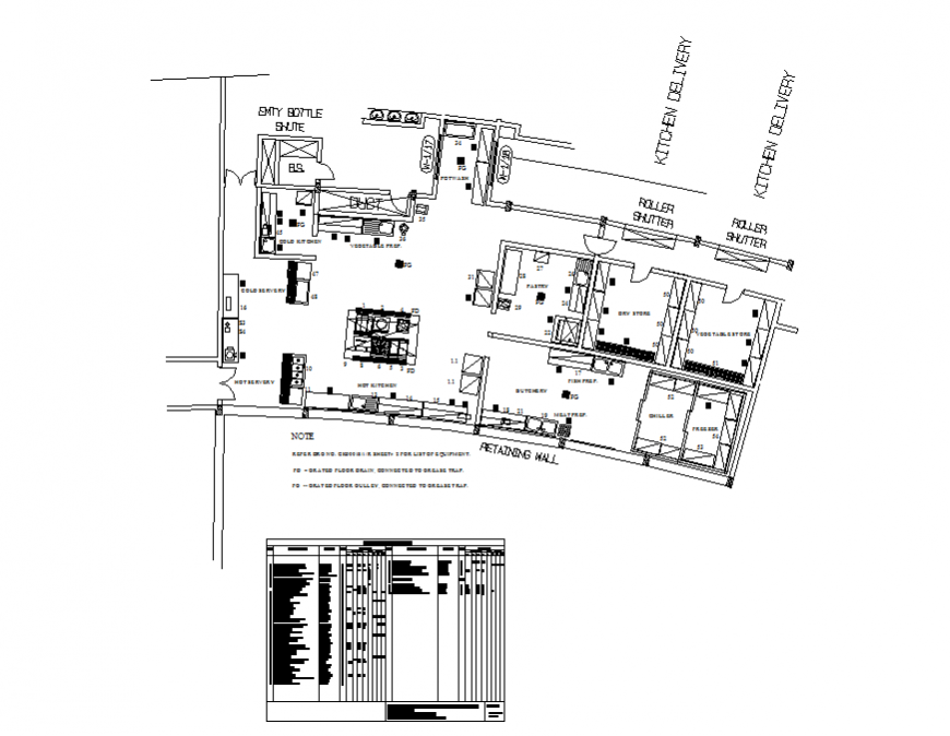
Large catering kitchen plan, furniture layout and auto-cad details that includes a detailed view of retaining wall design, tile design, dimensions details, furniture details, interior details, cooking area, platform area, gas stove, sink and plumbing details, electrical equipment details, chimney and exhaustion, ceiling details and much more of kitchen details.
Uploaded by:
Eiz
Luna

