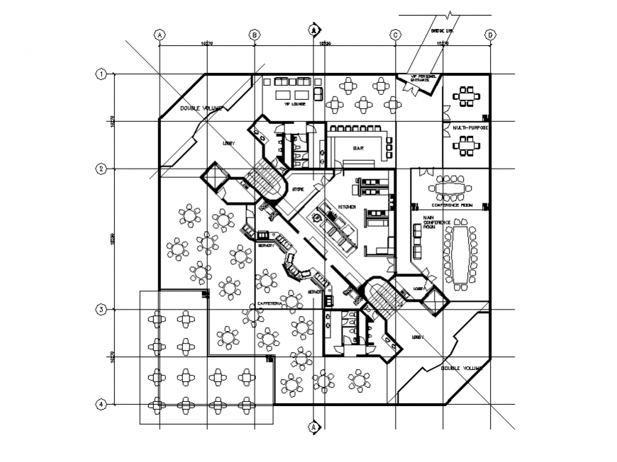
Large catering hostel kitchen layout plan cad drawing details dwg file
Description
Large catering hostel kitchen layout plan cad drawing details that includes a detailed view of all sided section details of kitchen with wall design, tile design, dimensions details, furniture details, interior details, cooking area, platform area, gas stove, sink and plumbing details, electrical equipment details, chimney and exhaustion, ceiling details and much more of kitchen details.
Uploaded by:
Eiz
Luna

