Exterior boundary fence detail drawing in dwg AutoCA file.
Description
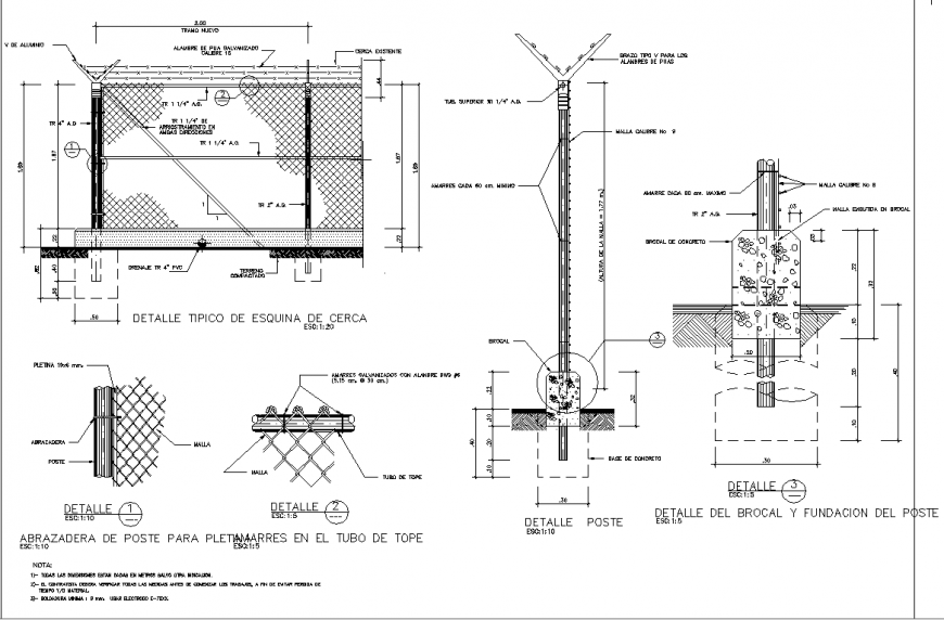
Exterior boundary fence detail drawing in dwg AutoCA file. This drawing includes the exterior boundary fence with end poles. Front elevation, side elevation of the end pole, footing detail of the pole, fence detail with dimensions and text.
File Type:
DWG
File Size:
107 KB
Category::
Construction
Sub Category::
Construction Detail Drawings
type:
Gold
Uploaded by:
Eiz
Luna
