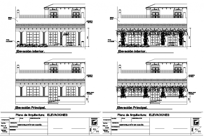
Different elevation drawing of traditional house in dwg file.
Description
Different elevation drawing of traditional house in dwg file. detail elevation drawing of traditional house, front elevation , side elevation details, carving details, column details with carving, dimensions and descriptions.
Uploaded by:
Eiz
Luna

