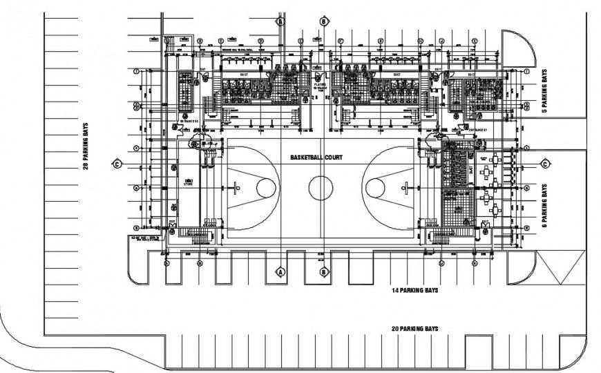
Stadium of a basket ball court top view layout plan dwg file
Description
Stadium of a basket ball court top view layout plan dwg file, this file contains top view layout plan of a stadium of basket ball, parking area is shown, seating area is also shown in auto cad format
Uploaded by:
Eiz
Luna

