House Architecture Design dwg file
Description
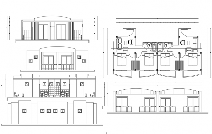
House Architecture Design dwg file. Elevation View of Family House Architecture Design that includes front elevation, back elevation, three bedroom detail, bathroom detail, toilet detail, washbasin detail, living room detail, drawing room detail, table and chair detail, balcony detail, door and window detail etc in AutoCAD format.
Uploaded by:
Eiz
Luna

