L shape kitchen working drawing in dwg AutoCAD file.
Description
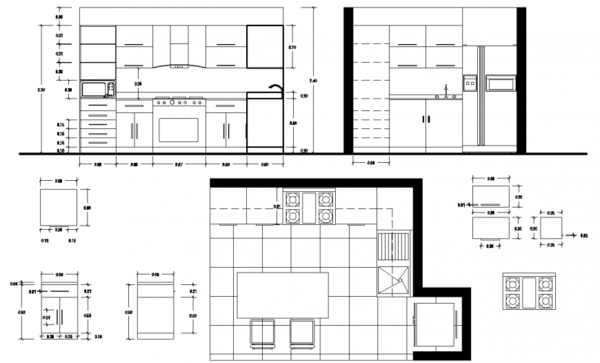
L shape kitchen working drawing in dwg AutoCAD file. This drawing includes the L shape kitchen top view plan with center dining table, wall detail elevation with main platform, kitchen cabinet, overhead storage, chimney, detail drawing of kitchen cabinet with dimensions.
Uploaded by:
Eiz
Luna

