Electric light drawing in dwg file.
Description
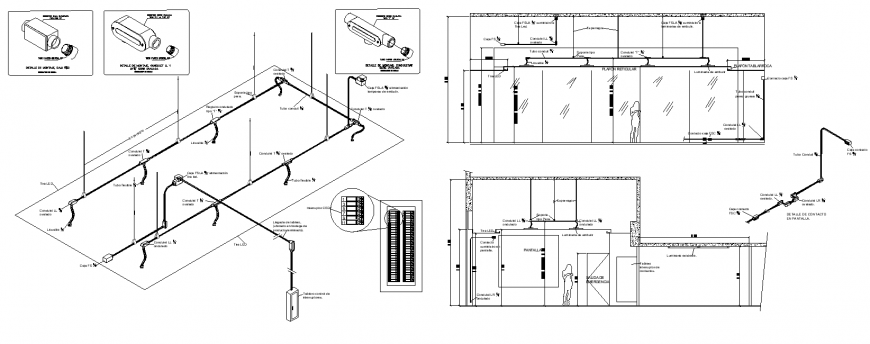
Electric light drawing in dwg file. Detail drawing of electric lights installation detail, isometric view detail, section detail, dimensions and descriptions details.
Uploaded by:
Eiz
Luna
Electric light drawing in dwg file. Detail drawing of electric lights installation detail, isometric view detail, section detail, dimensions and descriptions details.
Uploaded by:
Luna