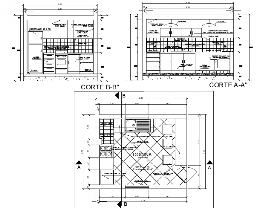
Kitchen plan and detail drawing in dwg AutoCAD file.
Description
Kitchen plan and detail drawing in dwg AutoCAD file. This drawing includes the top view plan of the kitchen with flooring, L shape main platform, breakfast table with stool, dimensions and detail description. Folded elevation of two walls with detail furniture elevation with dimensions.
Uploaded by:
Eiz
Luna

